Home > Products > Ship Loader
Ship Loader
product
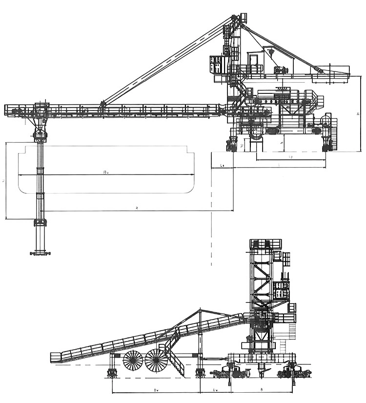
Heavy-duty Ship Loading conveyor system
Automated Ship Loader for efficient operations
Bulk material Ship Loader in action
Port Ship Loader with high capacity
about
play
Heavy-duty Ship Loading conveyor system
Automated Ship Loader for efficient operations
Bulk material Ship Loader in action
Port Ship Loader with high capacity
Authentication mark:
CCC
CE
ABS
BV
CCS
For customized products, please fill out information and submit the form.
Capacity:
300T-6000 T/h
Lifting Height:
Customized
Voltage/Hertz:
220V, Customized
Working Class:
A7,A8
Span:
Customized
Apply: Customizable: Adaptable to ship size, material type, and port layout.
SUBMIT
HOT PRODUCTS



For port operators and project managers seeking to optimize bulk material loading, the Ship Loader represents the pinnacle of efficiency, durability, and innovation. Designed to handle demanding materials like coal, grain, cement, and minerals, our systems ensure seamless, high-capacity transfers from storage to vessel, minimizing downtime and operational costs.



Why Choose Our Ship Loader? A Partner, Not Just a Product

We understand that investing in a Ship Loader is a strategic decision. Beyond specifications, you need a supplier who aligns with your operational goals, budget, and long-term success. Here’s how we deliver value at every stage of your journey:

1. Initial Screening: Trust in Proven Quality and Competitive Value

  • Established Reliability: Built with reinforced steel and engineered for harsh industrial environments, our Ship Loaders are backed by years of global deployments. You’re investing in a system designed to withstand continuous use without compromising performance.

  • Transparent Pricing: We offer scalable solutions (from 500 to 10,000 tons/hour) with clear cost breakdowns. No hidden fees—just honest pricing that fits your budget while ensuring premium quality.

  • Customization Ready: Whether you need fixed, mobile, or rail-mounted configurations, our modular designs adapt to your space and workflow requirements.


2. Mid-Stage Comparison: Expert Support When It Matters Most

  • Responsive Technical Consulting: Have questions about loading rates, dust control, or automation integration? Our engineers respond promptly with detailed insights tailored to your project.

  • Swift, Accurate Design Proposals: Share your requirements, and we’ll deliver preliminary layouts and schematics within days—not weeks—helping you visualize the solution and accelerate planning.

  • Streamlined RFQ Process: Receive a comprehensive, professionally prepared quotation that outlines technical specs, pricing, and delivery timelines. We ensure you have all the data to make informed comparisons.


3. Final Decision: Assurance Beyond the Sale

  • Robust After-Sales Service: From installation support to routine maintenance, our team remains accessible throughout the equipment’s lifecycle. Minimize disruptions with readily available spare parts and troubleshooting.

  • Flexible Payment Terms: We work with you to arrange secure, convenient payment options, including phased payments for large-scale projects.

  • Production Transparency: Visit our facility to inspect build quality firsthand or request regular progress updates. We keep you informed from assembly to delivery, so you’re never in the dark.

  • Long-Term ROI: With PLC-based automation, enclosed conveyors for dust suppression, and low-maintenance components, our Ship Loaders reduce labor, environmental risks, and lifecycle costs—ensuring reliability year after year.



Key Features at a Glance

  • High-Speed Loading: Capacities from 500 to 10,000 tons/hour to meet varying operational scales.

  • Eco-Conscious Design: Integrated dust suppression systems and enclosed conveyors for cleaner, compliant operations.

  • Smart Automation: PLC controls enable precise, repeatable loading cycles with minimal manual intervention.

  • Future-Proof Engineering: Modular components allow for upgrades or reconfigurations as your needs evolve.



Ready to Transform Your Loading Operations?
Contact us today for a customized consultation. Let’s discuss your project specifics, request a detailed RFQ, or arrange a facility tour. With our Ship Loaders, you’re not just buying equipment—you’re investing in a partnership dedicated to your productivity and growth.