-
Winch TrolleysFor more details -
Marine Stiff Boom CraneFor more details -
Marine Knuckle Boom CraneFor more details -
Marine Telescopic Boom CraneFor more details
- Product Overview
- Application Scenario
- Certificate
Product Introduction
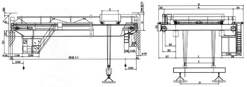
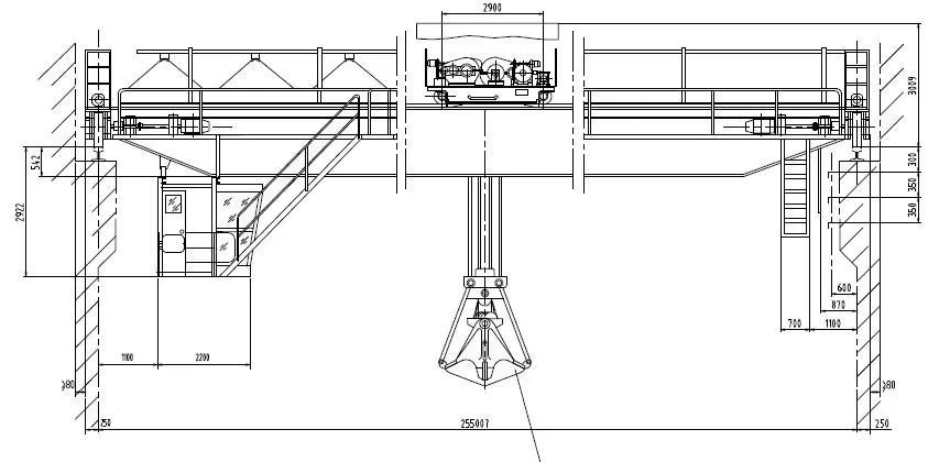
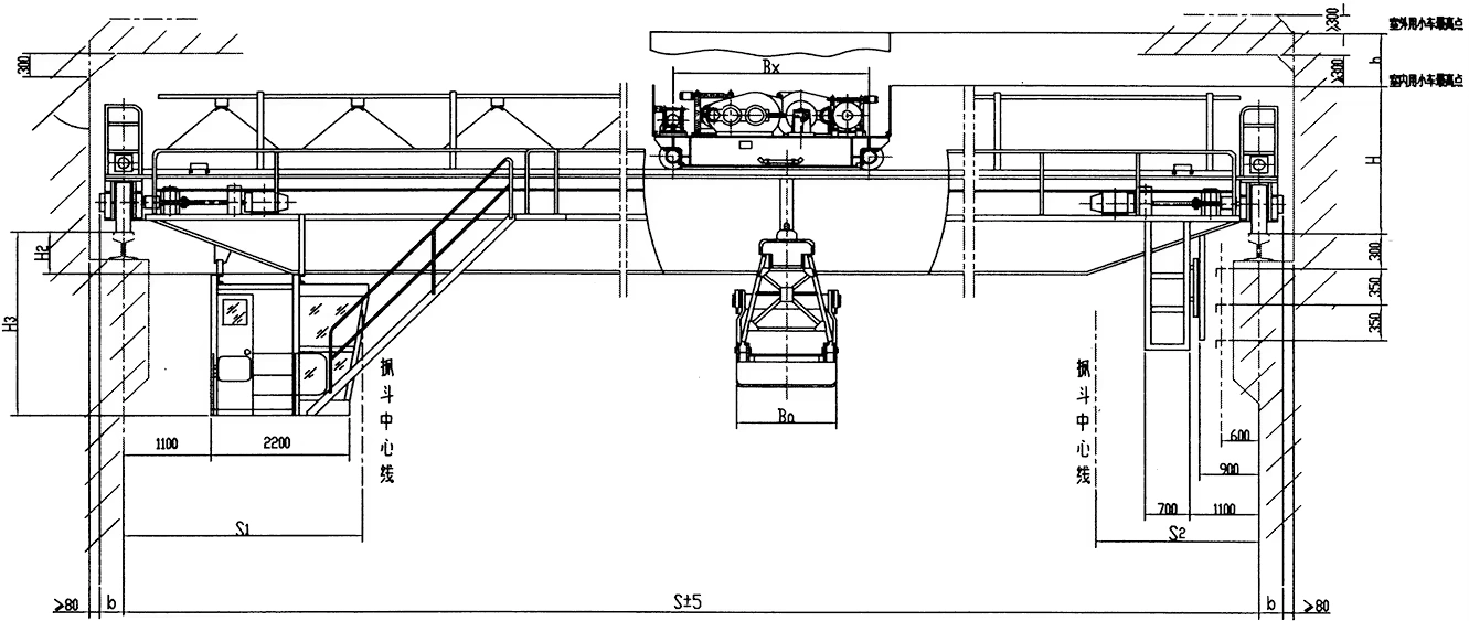
Our Smart Grab Crane is an advanced, automated handling solution designed specifically for waste-to-energy (WtE) and biomass processing plants. Engineered with cutting-edge automation, precision control, and energy-saving technologies, this crane enhances safety, efficiency, and productivity in waste handling operations.







Key Features & Innovations:
Anti-Sway Control
Advanced PLC programming and real-time communication technology significantly reduce grab swing, improving operational precision and productivity.
Millimeter-Level Positioning
High-precision positioning with automatic correction for wheel slippage, wear, or uneven rails ensures accurate material handling.
Fully Automated Operation
Auto-Feeding: Single-touch commands move the grab to designated hopper positions, optimizing feeding cycles and preventing material bridging.
Auto-Parking: The crane automatically returns to a safe parking position after completing tasks.
Smart Material Collection: Scans and maps waste pile profiles, then systematically collects material from optimal layers.
Energy-Saving Technology
Regenerative braking reduces energy consumption, lowering operational costs.
Intelligent Diagnostics & Safety
Self-Diagnosis: Detects faults (overload, drive errors, electrical issues) and displays error codes for quick maintenance.
Anti-Collision System: Laser/infrared sensors prevent collisions between cranes and with pit boundaries.
Remote Monitoring: Real-time data tracking enables predictive maintenance and performance optimization.
Weighing & Reporting
Integrated weighing system with auto-calibration, overload protection, and customizable reporting (by shift, operator, or date). Data can be exported to central DCS systems.
Ergonomic & Flexible Control
Human-Machine Interface (HMI): Siemens Touch Panel for intuitive operation.
Multi-Mode Operation: Manual, semi-auto, and full-auto modes with optional remote control.
Robust & Reliable Design
Compliant with ISO, FEM, EN, IEC, DIN standards.
High-quality, field-proven components with redundant load capacity for harsh environments.



