Product manual
-
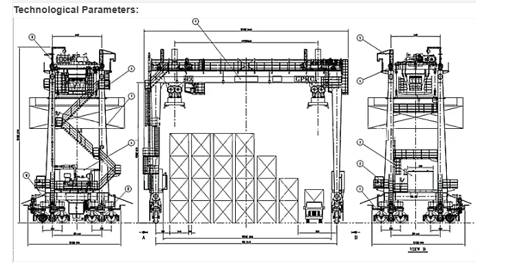
Straddle CarrierFor more details -
Yacht Hoisting CraneFor more details -
Double Girder Tyre Gantry CraneFor more details -
Single Girder Rubber Tyre CraneFor more details
- Product Overview
- Application Scenario
- Certificate



In the fast-paced world of container terminals and logistics yards, your equipment is the backbone of your profitability. The Rubber Tyred Gantry Crane (RTG) is engineered not just to meet operational demands, but to redefine them. We understand that your investment goes beyond the initial price; it's about long-term reliability, adaptability, and a partnership that ensures your success.
Why Our RTG Crane is Your Most Strategic Investment
For the Initial Screening: Where Brand Reputation and Core Quality Assure You
When building your shortlist, you look for proven performance and engineering excellence. Our RTGs are built on a legacy of reliability, designed for container handling professionals who cannot afford downtime.
Unmatched Mobility & Yard Flexibility: Unlike fixed-track cranes, our RTGs move freely on rubber tires, allowing you to optimize yard space dynamically. Transfer between stacks and lanes without being constrained by rails, giving you unparalleled operational agility.
Robust Construction for Continuous Duty: We use high-tensile steel and premium components to ensure structural integrity under heavy, 24/7 cycling. This isn't just a crane; it's a long-term asset built to withstand the test of time and workload.
Superior Ground Adaptability: A key advantage you care about—our RTG design is less sensitive to ground unevenness compared to more rigid systems. This means consistent performance and reduced stress on the crane's framework, leading to lower long-term maintenance costs.
Dual-Power Versatility: Operate efficiently with a clean grid power connection via our cable reel system, and never be caught off-guard. The integrated diesel generator provides essential backup during power outages or enables seamless relocation to other parts of the yard without external power sources.
During the Comparison & Cart Stage: When Expert Support and Clear Communication Matter
At this stage, you need a supplier who is responsive, technically proficient, and makes the specification process smooth. Our service excellence is a core part of our product offering.
Rapid & Tailored Design Proposals: We know time is critical. Submit your RFQ, and our engineering team will provide a preliminary layout and technical drawings promptly, tailored to your specific yard layout and container stacking requirements (1-over-5, 1-over-6, etc.).
Expert Consultation on Specifications: Our technical sales team speaks your language. We'll guide you through the choice between Tractor Trolley (for high-speed traversing) and Standard Trolley models, ensuring you select the configuration that maximizes your productivity.
Transparent & Competitive RFQ Process: You will receive a detailed, itemized quotation that clearly outlines what is included. We justify every cost, ensuring you understand the value and can make an accurate comparison, confident there are no hidden surprises.
Focus on Operational Economy: We highlight features that save you money daily, such as the "Three-in-One" Reducer for easier maintenance and our energy-efficient drive systems that minimize power consumption.
For the Final Decision: Ensuring a Secure Purchase and a Reliable Future
Your final decision hinges on trust, security, and the total cost of ownership. We solidify our partnership with unwavering support from the moment you place your order.
Comprehensive After-Sales & Warranty Protection: Your peace of mind is our priority. We offer robust warranty packages and a global network of service engineers. Access to OEM spare parts and remote troubleshooting ensures your crane remains operational.
Flexible Payment & Financing Solutions: We work with you to structure a payment plan that supports your cash flow, including secure milestone payments and assistance with financing options.
"See-It-For-Yourself" Factory Tours: We encourage and facilitate factory inspections. Come and see the build quality, the production process, and the skill of our workforce firsthand. This transparency builds the confidence you need to invest.
Proactive Production Updates & On-Time Delivery: Forget chasing for updates. We provide a clear production schedule and regular progress reports with photos and videos, so you are always informed and can plan your project timeline with certainty.
Guarantee of Long-Term Performance: Our commitment doesn't end at delivery. We provide extensive operator and maintenance training, detailed manuals, and lifelong technical support to ensure your RTG delivers peak performance and a superior return on investment for years to come.
Ready to experience the difference of a partnership-focused RTG supplier?


