Product manual
- Product Overview
- Application Scenario
- Certificate
What is a Travel Lift?
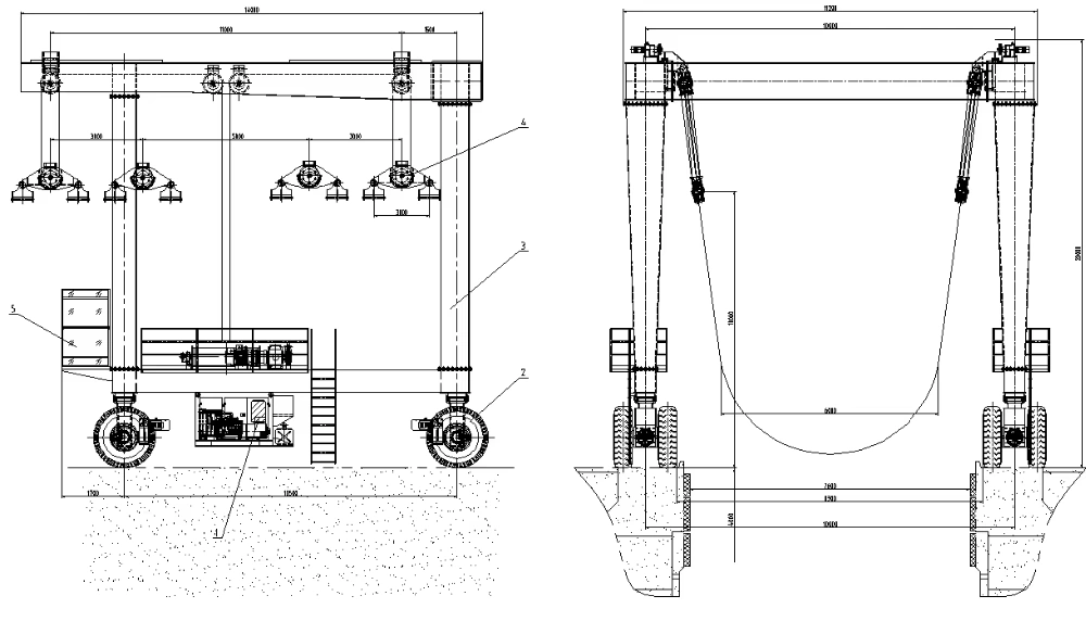
The tire type yacht handling crane is specially designed for various types of yachts, suitable for lifting ships in yacht clubs, water amusement parks, naval ports, and other units. Safe and reliable.with multiple steering modes, equipped with a diesel engine, and flexible maneuverability. The yacht hoist crane mainly consists of gantry frame, lifting mechanism, crane traveling mechanism, power station, and electronic control system, with a flexible steering system and excellent workingperformance.
Features of a Travel Lift?
Features
· Equipped with a diesel engine to provide power, using hydraulic drive.
· Multiple lifting point design, high synchronization, stability and reliability.
· It has various walking modes such as straight travel, oblique travel, and turning in place.
· Suitable for various road surfaces such as concrete and gravel roads, with a 4% climbing ability.
· The main beam and crossbeam are hinged to eliminate internal stress caused by uneven road surfaces.
· Wireless remote control.


FEATURES:
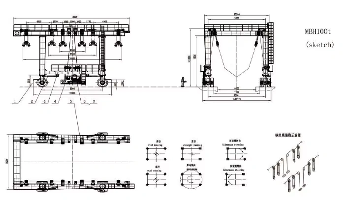
1. For the crane traveling, this crane can move in diagonal direction, this boat and yacht handling crane also can steer in 90 degree and put the boat in any designated position according torequirements.
2. This crane can be adjusted the width of the main girder according to the boat in case tohandling different side boat.
3. This yacht handling crane is of low expense, high performance, easy to operate andmaintenance and so on.
4. Low cost on the daily operation, it adopts the soft and firm belt to ensure there is no harm tothe boat when hoisting.
Main Car Hook
On a pair of main car hook ,the two main girder are set. But may be alone and lateral movemten 0-2m.
Diesel Generator
It adopts al-hydraulic driving, built-in diesel generator to provide power good liquidity.
Electric System
Electric system uses plc freauency adjustment which can easily control every mechanism.
Cabin Control
The high-strength frame is welded by high quality profile, and the high-quality cold rolling plate is finishedby the CNC machine.
Winch (Lifting Mechanism)
Lifting mechanism adopts the load-sensitive hydraulic system, the lifting point distance can be adjusted to keep the simultaneous lifting of multi-lift points and output power according to the load conditions, so that the energy consumption of the whole machine is reduced.
Door Frame
The door frame have single main type and double girder type two kinds of for the user choice for reasonable use of material. the main variable cross-section of the optimization design.
Firm Belt
Low cost on the daily operation, it adopts the soft and firm belt to ensure there is no harm to the boat when hoisting.
Traveling Mechanism
It can realize 12 walking functions such as straight line, oblique line, transverse line, in-place rotation and Ackerman turning etc. to meet the requirements of different working conditions. And it have 4% climbing ability.
Parameters of a Travel Lift?
Main performance parameters:
① Lifting capacity: 10t~1200t.
② Lifting speed: 0-2m/min (full load).
③ Operating speed: 0-30m/min (full load),0-40m/min (no load).
④ Climbing ability: 4%.
| Model/SWL | Span (m) | Lifting Ht (m) | Lifting Speed (m/min) | Travel Speed (m/min) | Steering Angle |
|---|---|---|---|---|---|
| 5+5 t (2m gap) | 12-20 | 6/9 | 8, 8/0.8 | - | 0-90° |
| 10+10 t (2m gap) | 12-20 | 6/9 | 7, 7/0.7 | - | 0-90° |
| 20+20 t (2m gap) | 12-20 | 6/9 | 3.5, 3.5/0.35 | 10-20 | 0-90° |
| 32+32 t (1 m gap) | 12-20 | 6/9 | 3.5, 3.5/0.35 | - | 0-90° |
| 50+50 t (1 m gap) | 12-20 | 6/9 | 4 | - | 0-90° |
| 10 t | 18-35 | 10-13 | 8.5 | 40 (Crane), 43.8 (Trolley) | - |
| 16 t | 18-35 | 10-13 | 7.9 | 38 (Crane), 44.5 (Trolley) | - |
| 20/10 t | 18-35 | 10-13 | 7.2/10.4 | 38 (Crane), 44.5 (Trolley) | - |
| 32/10 t | 18-35 | 10-13 | 7.5/10.4 | 40 (Crane), 41.9 (Trolley) | - |
| 36/16 t | 18-35 | 10-13 | 7.8/10.5 | 40 (Crane), 41.9 (Trolley) | - |
| 50/10 t | 18-35 | 10-13 | 6/10.4 | 38 (Crane), 38.13 (Trolley) | - |
| 100-300 kg/cm2 series | - | - | 0-5 (Non-load) | 0-35 (Non-load) | - |
Factory
We also have advanced single beam steel plate assembly welding workstation, gas carburizing furnace, fixed beam gantry mobile machining center, constant temperature workshop, six-axis articulated robot, electric hoist wallboard robot welding production line and other advanced production equipment, Only to produce the best equipment.
We can customize according to your requirements,please contact me for more details.
1. We have international quality with CE/SGS/ISO certificates.
2. We have 2700 staff with 20 years history with 680000 square meters floor area.
3. We sold 78960 sets of all kinds cranes in the year 2020.
4. We have been doing foreign trade for 15 years with good after-sale service.