Product manual
- Product Overview
- Application Scenario
- Certificate
QC Manget Overhead Crane is a specialized crane for lifting and moving steel products, steel plates and steel pipes. This crane is constituted by girder, traveling mechanisms, lifting trolley, electric parts and electromagnet spreader. The electromagnetic suction force of this overhead crane can last 10 minutes after power off. And the shape of electromagnet spreader could be customized bases on the shape of materials to be lifted.
There are 2 types of electromagnet spreader: electromagnetic chuck and electromagnetic beam. And electromagnetic beam can also be 2 kinds: non-rotating beam (vertical or parallel to main girder) and rotating beam (Upper beam or hanging beam).
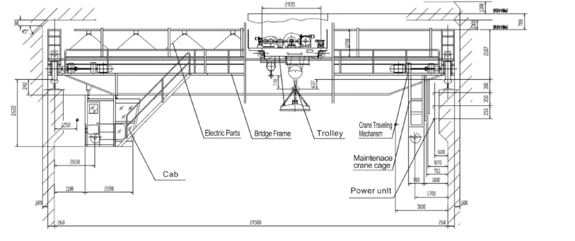
Sketch Drawing

Technical Parameters
| Lift capacity | t | 5 | 10 | 16 | ||||||
| Working system | A6 | |||||||||
| Span | m | 10.5 13.5 16.5 19.5 22.5 25.5 28.5 31.5 | ||||||||
| Max. Lift height | m | 16m | ||||||||
| speed | Hoist | Magnetic | m/min | 15.6 | 13 | 13 | ||||
| Crab traveling | 39.5 | 43.8 | 44.5 | |||||||
| Trolley traveling | 92.7 /93.7 | 92.7 /93.7/ 86.4 | 76 /89 | |||||||
| Electromagnetic disk | Model | MW-16 | MW-16 | MW-16 | ||||||
| Attracting weight kg | KG | 3330 | 8330 | 14330 | ||||||
| Dead weight kg | 1670 | 1670 | 1670 | |||||||
| Diameter | mm | 1180 | 1180 | 1180 | ||||||
| Steel track recommended | 43kg/m | |||||||||
| Power supply | 3-phase A.C. 50HZ 380V | |||||||||
1. Three kind entrances to the cab: end, side and top entrances;
2. The rotating part of hook must be locked by screws during electromagnetic plate working;
3. Its lifting capacity includes the weight of electromagnetic part, and the weight of whole crane does not include the weight of electromagnetic chuck and its components;
4. Box-typed girder structure is welded in high strength by robots;
5. Wheels, winding drums, gears and couplings are manufactured by CNC with best quality;
6. Heavy-duty slip ring motor from Wuxi NGP, the best quality in China;
7. Electric equipment from German Siemens
8. Independent control system: wireless control or cab control;
9. Lifting overload protection device;
10. Polyurethane buffer;
11. Crane travel limit switch;
12. Decompression protection;
13. Emergency shutdown device;
14. Current overload protector.