Product manual
-
Shipbuilding Gantry CraneFor more details -
Quey Ship to shore Container CraneFor more details -
Single Girder Rubber Tyre CraneFor more details -
Yacht Hoisting CraneFor more details
- Product Overview
- Application Scenario
- Certificate






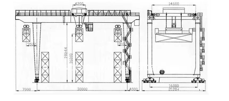
In the high-stakes world of logistics, your container yard's throughput is directly tied to your profitability. Our Rail-Mounted Container Gantry Crane (RMG) is engineered not just to move containers, but to optimize your entire operation for peak performance, reliability, and long-term value.
Why Our RMG is the Superior Investment for Your Terminal
We understand that your investment goes beyond the initial price tag. It's about total cost of ownership, operational uptime, and a partnership you can trust.
1. Uncompromising Performance & Operational Excellence
Precision Handling for All Standard Sizes: Effortlessly manage 20ft, 40ft, and 45ft ISO containers with pinpoint accuracy. Our robust hoisting and trolley traveling mechanisms ensure smooth, safe, and damage-free container moves, minimizing the risk of costly accidents.
Optimized Yard Space & Flow: Operating on fixed parallel rails, our RMG maximizes your valuable yard space. It enables dense, organized stacking and creates clear traffic lanes for trucks and other equipment, eliminating bottlenecks and speeding up turn-around times.
Built for the Toughest Environments: Constructed with high-grade, weather-resistant steel and components, this crane is designed for 24/7 operation. It withstands harsh port conditions, from saltwater corrosion to extreme temperatures, ensuring durability you can count on year after year.
2. Smart, Future-Ready Technology
Seamless Automation Integration: Don't just buy for today; invest for tomorrow. Our RMG is automation-ready, designed to integrate smoothly with remote control systems, Terminal Operating Systems (TOS), and full-yard automation projects. Protect your investment and upgrade your capabilities as your business grows.
Energy-Efficient Operation: Go green while saving money. We offer optional regenerative power systems that capture energy during lowering motions, feeding it back into the grid to significantly reduce your overall electricity consumption and operational costs.
Your Success is Our Process: A Partnership from Start to Finish
We know purchasing heavy equipment is a multi-stage process. We are built to support you at every step.
During Your Initial Research & Screening:
You look for a reputable brand with proven quality. We deliver:
Proven Track Record: Our cranes are operational in ports and terminals worldwide, a testament to our engineering and manufacturing excellence.
Transparent Quality Assurance: We use certified materials and components, and provide detailed documentation, so you can be confident in the crane's build quality and safety standards.
During the Comparison & Quotation Stage:
You need a responsive and expert partner. We provide:
Rapid, Expert Consultation: Contact us for a quick, no-obligation consultation. Our engineering team will work with you to understand your specific yard layout, capacity needs, and operational goals.
Customized Design & Timely RFQ: We don't just sell standard models; we provide tailored solutions. We will promptly generate layout drawings and a detailed technical proposal that fits your exact requirements, followed by a comprehensive and competitive RFQ response.
During the Final Decision & Purchase:
You need assurance that the service and support are as reliable as the crane itself. We guarantee:
Robust After-Sales & Warranty: Our commitment doesn't end at delivery. We offer extensive warranty packages, readily available spare parts, and access to a global network of service technicians to minimize downtime.
Flexible Commercial Terms: We work with you to find supportive payment terms and can assist with financing options to make your procurement process smooth.
Production Transparency & On-Time Delivery: Worried about production delays? We provide regular progress updates and welcome factory inspections. You can trust us to deliver your crane on schedule, as promised.
Comprehensive Training & Support: We ensure your team is fully trained on safe and efficient crane operation and basic maintenance, ensuring you get the most out of your investment from day one.
Ready to elevate your container handling operations?
Contact us today for a free, customized consultation and discover the true value of a partnership-driven RMG solution.



