-
Ship UnloaderFor more details -
Straddle CarrierFor more details -
Single Girder Rubber Tyre CraneFor more details -
Crane End BeamFor more details
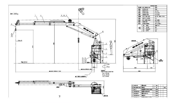
- Product Overview
- Application Scenario
- Certificate




For project managers, marine engineers, and procurement specialists, selecting an offshore crane is a critical, high-stakes decision. It's not just about lifting capacity; it's about operational continuity, crew safety, and long-term ROI in the world's most demanding environments. Our offshore cranes are built with this total cost of ownership in mind, delivering not just superior equipment, but a seamless partnership from your first inquiry to years of dependable service.
Why Our Offshore Crane is Your Most Strategic Choice
We understand your initial screening focuses on proven performance and trusted quality. Our cranes are the result of decades of specialized engineering, with a legacy of successful deployments on oil rigs, FPSOs, and support vessels globally.
1. Uncompromising Durability for Maximum Uptime:
Beyond Standard Materials: We use proprietary, high-yield, corrosion-resistant steel alloys and apply advanced protective coatings (like thermal spraying) that far exceed standard paint systems. This isn't just about resisting saltwater; it's about eliminating costly downtime and maintenance for decades.
Sealed & Protected Systems: Our hydraulic and electrical components are housed in pressurized, weatherproof enclosures to prevent contamination from salt spray, sand, and moisture—the primary causes of system failure.
2. Precision Engineering for Safety & Efficiency:
Intuitive, In-House Control System: Unlike adapted industrial systems, our proprietary control software is built specifically for the dynamic marine environment. It offers smooth, precise load management, anti-sway technology, and failsafe modes that enhance both operator confidence and worksite safety.
Adaptable Power & Configuration: We provide flexible solutions to fit your vessel's design. Choose between a Hydraulic Power Unit (HPU) or electric winch drive, with the freedom to locate major components on the crane or below deck to optimize space and weight distribution.
Your Questions, Answered: A Partner Through Every Step
We know your evaluation goes beyond spec sheets. You need a responsive, expert partner.
During Your Comparison & Quotation Stage:
"Will they understand my specific needs?"
Yes. Our technical sales team includes marine engineers. When you request a quote (RFQ), we don't just send a standard price list. We engage in a detailed consultation about your operational parameters—wave conditions, specific load types, duty cycles, and class society rules (ABS, DNV, Lloyd's, etc.)—to ensure a perfect fit.
"Can I get a custom design and a timely quote?"
Absolutely. We pride ourselves on our rapid and professional RFQ response. We provide preliminary design schematics and a transparent, competitive breakdown of costs, highlighting the long-term value engineered into every component.
During Your Final Decision & Purchase:
"What about after-sales support and warranty?"
Our global service network ensures you are never alone. We offer comprehensive warranty packages, 24/7 remote technical support, and a ready supply of genuine parts. We provide detailed installation guidance and on-site commissioning support.
"Can I trust your production and quality control?"
We encourage and facilitate factory inspections. See our quality management system in action, from material sourcing to final assembly. We provide regular production progress updates, so you are never left wondering about your order's status.
"Are your payment terms flexible?"
We work with international buyers to arrange secure, flexible payment solutions, including Letters of Credit (L/C) and milestone-based payments, to facilitate a smooth financial process.
Key Specifications at a Glance:
Robust Construction: High-grade, corrosion-resistant steel with advanced protective coatings.
High Load Capacity: Engineered for demanding lifts, from sensitive equipment to heavy cargo.
Precision Control: Smooth, responsive hydraulic operation with our proprietary, intuitive control system.
Versatile Mounting & Power: Customizable for various vessels and platforms (HPU or Electric).
Full Safety & Compliance: Certified to meet and exceed international maritime and offshore standards (ABS, DNV, GL, etc.).
Choose a crane that works as hard as your crew. Contact us today for a detailed consultation and a crane solution engineered for your success.

