When investing in a Single Girder Rubber Tyre Gantry Crane, you need more than just equipment—you need a reliable partner for your material handling operations. Our cranes are engineered to deliver unmatched performance, cost-effectiveness, and long-term value, ensuring your business stays ahead in a competitive landscape.
Why Our Single Girder Rubber Tyre Gantry Crane Stands Out
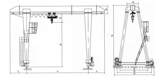
1. Superior Structural Integrity & Lightweight Design
Our cranes feature a one-time forming main beam with precision welding, ensuring exceptional vertical and horizontal rigidity. This innovative design reduces the crane’s dead weight while maintaining superior strength, resulting in lighter wheel loads and extended operational life. The outcome? Lower foundation costs and reduced long-term wear.
2. Smooth & Stable Movement
Equipped with a soft-start motor and an optimized motor-reducer-wheel drive system, our crane ensures jerk-free starting and smooth travel. This minimizes load swing, enhances operational safety, and reduces mechanical stress on the crane structure.
3. Premium Electrical Components for Uninterrupted Performance
We use globally recognized electrical systems from Siemens or Schneider, integrated with advanced inverters, PLCs, and a Crane Monitoring & Management System (CMMS). This combination ensures intelligent control, real-time fault diagnostics, and energy-efficient operation, keeping downtime to a minimum.
4. Customizable Spreader & Flexible Configurations
Our cranes come with a versatile spreader designed to handle 20ft, 40ft, and 45ft containers. Need a non-standard solution? We specialize in customizing crane specifications to match your unique operational requirements—just share your needs, and we’ll deliver.
5. Exceptional Durability with Minimal Maintenance
Built to withstand harsh working environments (from -20°C to 45°C), our cranes feature heat-resistant coatings and robust construction. This translates to a long service life with minimal maintenance needs, saving you time and operational costs.
Your Journey to the Right Crane: How We Support You
Initial Research Phase: Focus on Quality & Value
We understand that you’re comparing brands, quality, and pricing. Our cranes are manufactured in compliance with international standards (GB/T 3811, GB/T 14406, and GB/T 14783), ensuring reliability and safety. With competitive pricing and clear value propositions, we make it easy for you to choose a trusted solution.
Comparison & Quotation Stage: Responsive & Professional Support
Quick Design & RFQ Processing: Share your requirements (lifting capacity, span, lifting height, etc.), and we’ll provide a detailed design layout and a competitive quote within 24 hours.
Expert Consultation: Our engineers are ready to discuss technical parameters, duty cycles, and power supply specifications (380V, 50Hz standard) to ensure the crane fits your operational needs perfectly.
Final Decision Phase: Reliable Service & Long-Term Assurance
Comprehensive After-Sales Service: From installation support to routine maintenance, we offer lifelong technical assistance and readily available spare parts.
Flexible Payment & Production Monitoring: We provide secure payment options and welcome site inspections. Stay updated with real-time production progress reports to keep your project on track.
Performance Guarantee: Our cranes are built for long-term efficiency, ensuring consistent performance even under high-duty cycles.
Key Parameters to Share for a Tailored Solution
To help us provide the most accurate recommendation and quote, please share the following details:
Lifting Capacity: ___ tons (or container types)
Span: ___ meters (distance between wheel centers)
Lifting Height: ___ meters
Duty Cycle: ___ working hours/day & full load percentage
Power Supply: ___ V, ___ Hz
Let’s collaborate to design the ideal crane solution for your business. Reach out today—we’re here to help you make a smart, future-proof investment!


Imagine having a material handling solution that moves as flexibly as your business demands—entering tight spaces, navigating congested yards, and adapting to diverse lifting challenges without permanent tracks or massive infrastructure costs. Our Single Girder Rubber Tyre Gantry Crane delivers exactly that: versatile, efficient, and reliable performance across numerous applications.
Where It Excels: Key Application Scenarios
1. Container Yards & Logistics Hubs
Picture a bustling container yard where speed and space utilization are critical. Our rubber tyre gantry crane moves seamlessly between container stacks, loading and unloading trucks with precision. Its flexible mobility allows you to maximize storage density and streamline workflows, turning chaotic yards into organized, high-throughput operations.
2. Railway Terminals & Intermodal Facilities
In fast-paced railway depots, where containers constantly shift between trains and trucks, our crane offers the perfect balance of mobility and strength. It navigates narrow passages and crowded areas effortlessly, ensuring smooth transshipment and reducing train turnaround times—keeping your supply chain on schedule.
3. Port Operations & Terminal Handling
While larger cranes handle ship-to-shore operations, our single girder solution plays a vital role in secondary movement and storage areas. It efficiently transfers containers from quay to storage, complements existing infrastructure, and serves smaller vessels or barges where full-sized equipment would be impractical or too costly.
4. Manufacturing & Industrial Plants
Beyond standard containers, this crane handles heavy machinery, raw materials, and finished products within manufacturing facilities. Its ability to operate indoors and outdoors—coupled with excellent maneuverability—makes it ideal for factories with limited space or multiple work zones.
5. Warehousing & Distribution Centers
For warehouses managing both containers and bulk goods, this crane offers adaptable lifting capacity without fixed infrastructure. It reaches where overhead cranes can’t, serves multiple loading bays, and handles irregular loads safely—all while keeping maintenance costs low.
6. Project Cargo & Temporary Sites
Construction projects, temporary storage sites, and event logistics benefit from the crane’s quick setup and mobility. No need for expensive foundations—just a firm ground surface and you’re ready to handle heavy equipment, modular units, or special cargo.
Why Customers Trust This Solution Across Applications
Proven Safety & Intelligent Control
Your operators’ safety comes first. That’s why we integrate overload protection, clear safety protocols, and PLC-controlled frequency drives for smooth, precise movements. No more jerky stops or unpredictable load swings—just consistent, controllable operation that protects both your team and your cargo.
Adaptable to Your Specific Needs
We understand that every facility is unique. During the consultation phase, we focus on understanding your:
Space constraints and layout challenges
Typical cargo types and weight requirements
Peak operation periods and throughput targets
Existing equipment and integration needs
This allows us to recommend the perfect configuration—whether you need standard container handling or custom spreaders for special loads.
Engineered for Continuous Operation
When your business depends on reliable material handling, downtime isn’t an option. Our cranes feature premium components, thermal-protected main beams, and weather-resistant designs that perform consistently from -20°C to 45°C. The robust construction ensures years of service with minimal maintenance interruptions.
From Consideration to Operation: How We Ensure Your Success
During Evaluation: Understanding Your Application
We don’t just sell cranes—we solve material handling challenges. Share your operational scenario, and we’ll provide:
Application-specific case studies and performance data
Layout planning assistance and space optimization tips
Transparent pricing that reflects your actual needs
During Customization: Technical Expertise You Can Rely On
Our engineering team delivers:
Quick 2D/3D layout drawings within 24-48 hours
Professional RFQ responses with detailed specifications
Operation cycle analysis and energy efficiency calculations
Customization options for special environments or cargo types
After Decision: Comprehensive Support
We ensure smooth implementation through:
On-site installation supervision and operator training
Flexible payment terms and production progress updates
Lifelong technical support and readily available spare parts
Performance monitoring and preventive maintenance plans
Start Your Project Right
To help us recommend the optimal crane for your specific application, please share:
Primary use case: (e.g., container yard, manufacturing plant, warehouse)
Typical loads: (container sizes, material types, special cargo)
Space limitations: (working area dimensions, clearance requirements)
Operational intensity: (hours/day, lifts/hour, environmental conditions)
Let's discuss how our Single Girder Rubber Tyre Gantry Crane can transform your operations. Contact us today for a site-specific recommendation and detailed proposal tailored to your business needs!