-
Wire RopesFor more details -
Marine Cargo Deck CraneFor more details -
Multi-Function Crane for Electrolytic AluminumFor more details -
Anode Carbon Stacking CraneFor more details
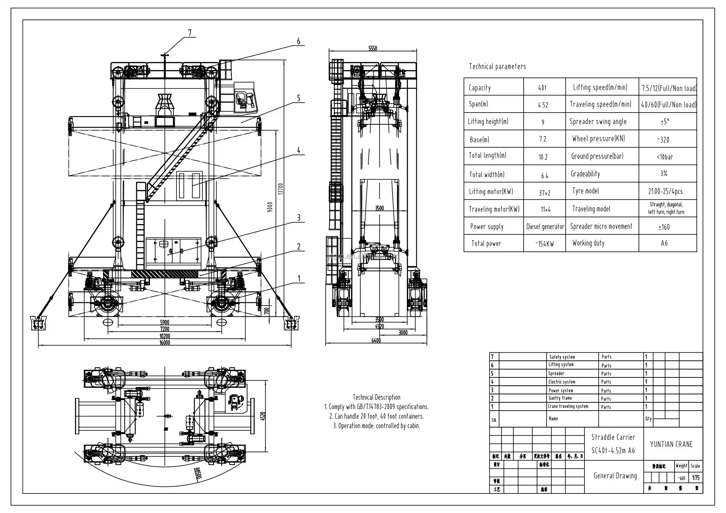
- Product Overview
- Application Scenario
- Certificate


When investing in heavy port equipment, you need more than just a machine; you need a reliable partner for your operations. Our Straddle Carrier is engineered from the ground up to deliver not just superior performance, but total cost-effectiveness and long-term peace of mind. Here’s how we address your core concerns throughout the buying process.
1. Uncompromising Structural Integrity & Lower Lifetime Cost
Customer Concern (Initial Screening): "Is this brand built to last? Will the structure fail under heavy, cyclic loads?"
Our Solution: We move beyond standard welding. Our main beam and U-frame are a single, forged structure where possible, eliminating critical stress points. Combined with automated welding and NDT (Non-Destructive Testing) inspection, this results in an incredibly rigid frame with a lower dead weight. For you, this means smaller wheel loads, reduced ground pressure, and significant long-term savings on pavement maintenance and energy consumption.
2. Smooth, Stable & Predictable Movement
Customer Concern (Initial Screening & Comparison): "Will it jerk and damage my containers? Is the travel system durable?"
Our Solution: Stability starts from the ground up. Our end-carriage system integrates a soft-start motor with a precision motor-reducer-wheel drive. This eliminates jarring movements, ensuring exceptionally smooth acceleration and deceleration. The result is enhanced safety for your cargo, reduced strain on the equipment, and a more comfortable environment for the operator.
3. Operational Uptime Guaranteed by Premium Components
Customer Concern (Comparison & Decision): "What about electrical failures? How do you handle heat in demanding environments?"
Our Solution: We eliminate guesswork and downtime. Your electrical systems are powered by globally recognized brands like Siemens or Schneider, controlled by advanced Inverters, PLCs, and a real-time CMMS (Condition Monitoring and Management System) that alerts you to potential issues before they cause downtime. Furthermore, a specialized heat-resistant coating on the main beam protects critical components from radiant heat, ensuring consistent performance.
4. Custom-Engineered for Your Specific Workflow
Customer Concern (RFQ & Design Stage): "Can they adapt to my exact container mix and yard layout?"
Our Solution: While our standard spreader seamlessly handles 20', 40', and 45' containers, our core strength lies in custom engineering. During the RFQ process, our technical team will work closely with you to design non-standard solutions. You can expect prompt, professional design consultations and detailed drawings tailored to your unique operational requirements.
5. Your Partner from Inquiry to On-Site Operation
We understand your decision extends beyond the product specs.
During Comparison & Quotation: You will receive a swift, transparent, and competitive RFQ response. Our communication is professional and detailed, ensuring you have all the technical parameters and a clear breakdown of costs to make an informed comparison.
During the Decision & Purchase Phase: We offer flexible payment terms and welcome factory inspections, providing full transparency into our production quality and progress. We keep you updated with regular production milestones.
After the Sale: Our partnership continues with comprehensive after-sales support, including training, a readily available spare parts supply, and technical assistance to ensure your Straddle Carrier delivers a long, low-maintenance service life.
Key Features & Direct Benefits
Efficiency: Combines the stacking capability of a yard crane with the mobility of a terminal truck. Benefit: Achieve rapid and precise container movement in short to medium distances, maximizing your yard's throughput.
Flexibility: The unique straddling design allows the carrier to move freely between different yard sections. Benefit: Navigate complex and congested operational areas with ease, offering unparalleled layout adaptability.
Adaptability: Engineered to handle various container sizes and weights. Benefit: Future-proof your investment and maintain operational flexibility as your cargo mix evolves.
Core Component Assurance
Rubber Tyres: High-quality, abrasion-resistant rubber with protective rings. Benefit: Ensures excellent traction, flexible turning, and dramatically extends tyre life, reducing a major operational cost.
Container Spreader: Features a robust master link with a four-leg wire rope sling and a fail-safe locking system. Benefit: Guarantees secure and stable container handling, protecting your valuable assets.
Crane Cabin: A full-view, climate-controlled cabin with an ergonomic console. Benefit: Reduces operator fatigue, enhances safety through superior visibility, and boosts overall productivity.
Winch Trolley: Engineered for smooth running along the beam without rail gnawing. Benefit: Provides precise load positioning, low operating noise, and exceptional reliability for daily heavy-duty cycles.
Choose a Straddle Carrier that is not just purchased, but strategically invested in. Let's discuss how our engineering can solve your specific operational challenges.


