1. What is a Straddle Carrier? Defining the Machine
A Straddle Carrier is a mobile vehicle that uses a large, rigid frame to "straddle" its load. It picks up containers by lowering a spreader (a telescopic lifting frame) from the top of the structure, lifting the container clear of the ground, and then transporting it within the wheelbase of the machine.
Unlike Forklifts (or "top loaders") which lift from the front, requiring significant turning radius, or Reach Stackers which handle containers from the side, the Straddle Carrier encompasses the load entirely. This design offers unique stability and stacking capabilities, typically ranging from 3-high to 5-high (and sometimes even 6-high) depending on the model and terminal requirements.

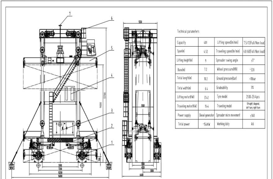
2. Technical Specifications & Key Components
To understand the capability of a straddle carrier, one must look at its core engineering components:
The Spreader: The heart of the lifting mechanism. Modern spreaders are telescopic, adjusting to handle 20ft, 40ft, and 45ft containers. They are equipped with twist locks that securely fasten to the container's corner castings. Advanced models feature flippers and side guides to assist the driver or automation system in fine-tuning alignment.
Power Train: Most modern straddle carriers are diesel-electric. A diesel engine powers a generator, which sends electricity to hub-mounted electric motors in the wheels (motorized wheels). This setup eliminates the need for cmplex mechanical drive shafts and provides the precise torque control required for stacking.
Alternative Fuels: The industry is shifting toward hybrid and fully electric models to reduce emissions in port communities.
Hoisting and Gantry System: The spreader is raised and lowered by wire ropes or chains connected to a hoist mechanism located in the top beam of the carrier. The gantry structure must withstand immense torsional forces when carrying a 40-ton load at height.
Control Systems (PLC): A Programmable Logic Controller (PLC) manages all functions, including speed, steering, and load handling. This system prevents unsafe operations, such as attempting to turn at high speed with a raised container.

3. The Operational Workflow: How They Work
In a typical terminal operating a straddle carrier fleet, the workflow follows a "carrier direct" system:
Vessel Discharge: The STS crane lifts a container from the ship and places it onto the quay.
Pick-up: A Straddle Carrier drives over the container, lowers its spreader, and lifts it.
Transport: The carrier transports the container across the terminal to the storage yard.
Stacking: The carrier lifts the container to the required height (e.g., 4-high) and places it precisely over another container in the stack.
Delivery: When a truck or train arrives for import, another straddle carrier retrieves the container from the stack and loads it onto the external chassis.
This process eliminates the need for a separate horizontal transport fleet (like terminal tractors) in some layouts, as the straddle carrier performs both the transport and the stacking functions.
4. Types of Straddle Carriers
Straddle carriers are not one-size-fits-all. They are typically categorized by their stacking capacity:
1-over-2 (1-high): Used primarily for short-distance shuttling between the quay and the yard, often in tandem with stacking cranes.
1-over-3 (4-high): The industry workhorse. Capable of stacking one container on top of three (resulting in a stack four high). Ideal for medium-density yards.
1-over-4 (5-high) and 1-over-5 (6-high): These "tall boys" maximize land utilization. They require heavier counterweights, more powerful engines, and exceptionally stable suspension systems to handle the center of gravity shift at height.
5. Advantages vs. Disadvantages
Advantages:
High Density: Maximizes storage capacity per square meter compared to RTG (Rubber-Tired Gantry) cranes that require wide lanes.
Flexibility: Straddles can access any container in the stack randomly (if not too high), whereas RTG cranes must work in a block.
Redundancy: If one machine breaks down, another simply drives around it. There are no fixed rails or power lines to obstruct traffic.
Dual Cycle: The operator can often perform a "dual cycle"—dropping off an export container and immediately picking up an import—in a single trip.
Disadvantages:
High Capital Cost: Straddle carriers are expensive, specialized pieces of equipment.
Maintenance Intensity: The rubber tires, diesel engines, and complex hydraulics require rigorous preventative maintenance.
Skill Requirement: Manual driving requires high levels of skill to align with containers quickly without damaging the truck or stack.
6. The Automation Revolution
The future of the straddle carrier is automated (Auto-Strads). Terminals like the Patrick Terminals in Brisbane or the London Gateway are leading the charge in automation.
Automated Straddle Carriers use a combination of:
GPS and Transponders: For precise geo-location within millimeters.
LIDAR and Radar: For obstacle detection and collision avoidance.
Traffic Control Systems: Central software directs the fleet to prevent gridlock and optimize routes.
Automation removes the variability of human driver fatigue, allowing for consistent 24/7 operation. However, it requires the terminal infrastructure to be perfectly level and the container stacks to be mapped with extreme accuracy.
7. The Future Outlook
As global trade volumes increase and ports face pressure to expand without acquiring more land, the demand for high-stacking, agile equipment remains strong. The straddle carrier is evolving from a purely mechanical beast into a sophisticated data-gathering node.
Future models will likely feature:
Telemetry: Real-time data on fuel consumption, tire pressure, and component wear.
Remote Operation: Even in semi-automated terminals, operators will eventually control multiple machines from ergonomic remote desks rather than sitting in the cab.
Green Power: A full transition to lithium-ion battery power, enabling fast charging during downtime and zero-emission terminals.
Conclusion
The Straddle Carrier remains a critical asset in the global supply chain. Its unique ability to combine lifting, transporting, and stacking into a single, flexible machine makes it indispensable for terminals that prioritize agility and density. As automation and electrification continue to reshape the industry, the straddle carrier stands poised to become smarter, greener, and more efficient than ever before.
Frequently Asked Questions (FAQ)
1. What is the primary purpose of a Straddle Carrier?
The primary purpose of a straddle carrier is to lift, transport, and stack intermodal shipping containers within a port or rail terminal. It acts as both a transport vehicle (moving containers between the quayside and the yard) and a stacking crane (storing containers vertically to save space).
2. How much does a Straddle Carrier cost?
A new, heavy-duty straddle carrier is a significant capital investment. Prices typically range from $1 million to $2.5 million USD, depending on the stacking height capacity (e.g., 1-over-4 vs. 1-over-5), power type (diesel-electric vs. full electric), and automation readiness. Automated models are at the higher end of this spectrum.
3. Are Straddle Carriers difficult to drive?
Yes, manually operating a straddle carrier requires significant skill and certification. The operator sits in a cab at the top of the machine, looking down between the legs to align the spreader with the container. It requires excellent spatial awareness to navigate tight rows of stacked containers and to "flip" or "twist" the container into place without causing damage.
4. What fuel do Straddle Carriers use?
Traditionally, straddle carriers use diesel-electric power systems—a diesel engine powers a generator that drives electric motors in the wheels. However, the industry is rapidly transitioning toward fully electric battery-powered models to meet emission reduction targets at ports.
HENAN ZEHUA HEAVY INDUSTRY EQUIPMENT CO., LTD
Email: sale@zehuacranes.com
Website: [https://www.zehuacranes.com/]
Whatsapp:86-19562739544